Project Nearby
Real Estate
Townhouse/Townhome
The Primary Ultimate Kaset-Nawamin
Privilege
See All
Loading..
-
ใกล้ BTS
Keywords 1, Keywords 2, Keywords 3
Project Description
Starting price
5,990,000 Baht
($187,188)
Update
01 Jun 2012
Completion Year
-
Project Name
The Primary Ultimate Kaset-Nawamin
Project type
Townhouse/Townhome
Developed by
บจก.กรุงเทพพัฒนา ซีเอ็มเอส
Land area
Facilities
-
สวนหย่อม/ สวนสาธารณะ
Selling Point
อาคารพาณิชย์สูง 4 ชั้น พื้นที่ใช้สอยกว้างขวาง รูปแบบบ้านสวยงาม ทันสมัย
Project Details
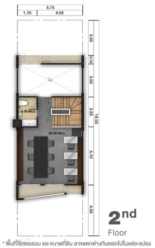
รูปแบบโครงการพัฒนาเป็นอาคารพาณิชย์ 4 ชั้น สไตล์ทันสมัย เพิ่มลูกเล่นด้านหน้าอาคารด้วยเส้นสายของระแนง ทำให้ด้านหน้าอาคารไม่ดูเรียบจนเกินไป มีรูปแบบให้เลือก 2 แบบ แตกต่างกันที่พื้นที่ใช้สอยภายในตัวบ้าน ภายในแบ่งเป็นออฟฟิศบริเวณชั้น 1-2 และที่พักอาศัยบริเวณชั
Location
ทำเลที่ตั้งของโครงการตั้งอยู่บนถนนนวลจันทร์ เข้าซอยนวลจันทร์ 28 เพียง 100 เมตร โครงการตั้งอยู่ทางด้านซ้ายมือ การคมนาคมสะดวกสบาย เนื่องจากเป็นเส้นทางที่สามารถเชื่อมต่อได้ทั้งถนนรามอินทรา ถนนนวมินทร์ ถนนเลียบทางด่วนรามอินทรา และถนนประเสริฐมนูญกิจ นอกจากนี้ยังอยู่ใกล้ทางขึ้น-ลงทางด่วนอีกด้วย
Nearest landmark The Primary Ultimate Kaset-Nawamin
Calculate Property transfer tax
ราคาเฉลี่ยโครงการในทำเลใกล้เคียง
Compare with nearby projectsThe Primary Ultimate Kaset-Nawamin
Project Name
Property Type
Developed by
Starting price
Land area
Completion Year
Sub District
District
Province
Facilities
Comments